توضیحات کاره

طراحی و ترسیم نقشه‌های معماری در AutoCAD – ویژه پروژه‌های مسکونی، اداری، آموزشی و تجاری

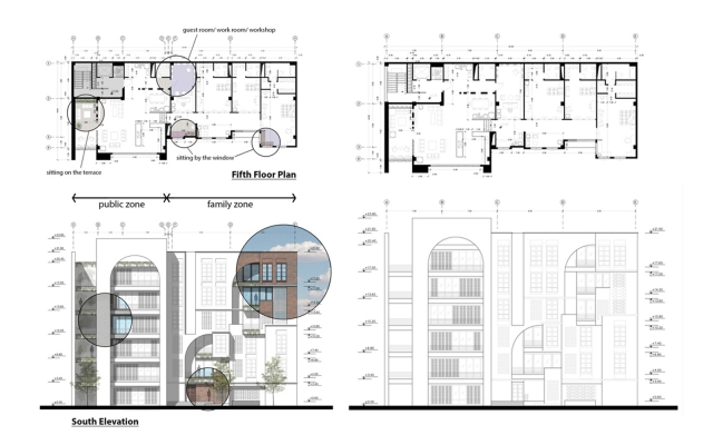
طراحی اصولی یک فضا، پایه‌ی ساخت یک پروژه‌ی موفق است. در نقشه‌های معماری، ارتباط درست بین فضاهای مختلف — به‌ویژه در پلان‌های مسکونی، تفکیک صحیح حریم خصوصی و عمومی — تأثیر زیادی در زیبایی و کارایی نهایی دارد.

در این خدمت، طراحی فاز یک و ترسیم نقشه‌های معماری با نرم‌افزار AutoCAD برای انواع کاربری‌ها انجام می‌شود:

  • پلان طبقات

  • اندازه‌گذاری و آکس‌بندی

  • جانمایی و مبلمان

  • اصلاح، بازطراحی یا ترسیم نقشه‌های دستی

 

تعرفه خدمات:

  • ترسیم نقشه موجود در اتوکد: متری 30000 تومان

  • طراحی و ترسیم کامل نقشه: متری 70000 تومان

  • پروژه‌های خاص (متراژ بالای 300 متر،نقشه‌های ناقص/بدخط، طراحی ویژه ویلا، دوبلکس، فرم خاص، پروژه‌های تجاری، اداری، درمانی، درخواست نما یا برش، اتودهای متعدد): قیمت توافقی / ضریب سختی +10% تا +50%

 

زمان تحویل:

  • ترسیم نقشه دستی: 1 تا 3 روز کاری
  • طراحی کامل: زمان تحویل بر اساس متراژ و پیچیدگی پروژه اعلام می‌شود.
  • امکان انجام فوری با هزینه اضافه وجود دارد.

 

روند انجام پروژه:

  1. دریافت نقشه‌ی دستی یا توضیحات و نیازهای کارفرما
  2. ارائه‌ی نقشه‌ی اولیه و جانمایی فضاها
  3. پس از تأیید، ترسیم نهایی و تحویل فایل پروژه
  4. یک مرحله اصلاح رایگان پس از ارسال اولیه

 

خدمات اضافه:

  • در صورت تمایل، می‌توانید مدلسازی و رندر فضا را نیز سفارش دهید تا طرح نهایی با کیفیت بصری بالا به شما ارائه شود.
    هزینه این بخش با توجه به حجم و جزئیات پروژه تعیین می‌شود.

 

نکته:

قیمت‌گذاری بر اساس طراحی پلان انجام می‌شود.
در صورت تمایل به طراحی نما یا تحویل فایل‌های گرافیکی (JPG) یا فایل اتوکد، لطفاً قبل از ثبت سفارش هماهنگ کنید تا پروژه‌ی اختصاصی شما تعریف و قیمت دقیق اعلام شود.

 

 چرا همکاری با من؟

هدف من ارائه طرح‌هایی است که هم کاربردی باشند و هم زیبا و چشم‌نواز.
با توجه به اصول معماری و خواسته‌های شما، تلاش می‌کنم بهترین استفاده از فضا را فراهم کنم.

می‌توانید قبل از سفارش، از طریق بخش گفتگو جزئیات پروژه را مطرح کنید تا دقیق‌تر راهنمایی‌تان کنم.
نمونه‌کارها را ببینید و با خیال راحت تصمیم بگیرید.

در صورت وجود هرگونه سوال یا ابهام قبل از ثبت سفارش با من در ارتباط باشید

مشتری بعد از انجام سفارش، به طور مشخص موارد زیر را تحویل خواهد گرفت:

 

 خروجی پروژه:

  • فایل PDF از پلان نهایی

  • (در صورت درخواست و هماهنگی قبلی) فایل DWG اتوکد

  • در صورت نیاز، ارائه‌ی گرافیکی به صورت JPG با هزینه جداگانه

    انتخاب جزئیات و ثبت سفارش

    ارائه گرافیکی تا 100 متر مربع +1 روز +700,000 تومان
    برای به ازای هر متر مربع   در 7 روز
    اگر پروژه خاص و یا شرایط خاصی را درنظر دارید که در باکس بالا نیامده، پروژه اختصاصی خود را درخواست دهید.